Imagen | Isidoro Valcárcel Medina: Tiene que  haber un modo más creativo de darle uso a los museos

Imagen | Isidoro Valcárcel Medina: "Tiene que haber un modo más creativo de darle uso a los museos"

Arte

Isidoro Valcárcel Medina: "Tiene que haber un modo más creativo de darle uso a los museos"

Honesto, escéptico, crítico, Isidoro Valcárcel Medina es uno de nuestros artistas más respetados. 'Arquitecturas prematuras' reúne en el MUSAC de León sus proyectos más arquitectónicos

Publicada

"A la escucha el contestador del número 91… Pero el contestador, a pesar de su nombre, no puede contestar, el comunicante será atendido por algún otro medio". Así sonaba el contestador automático de Isidoro Valcárcel Medina (Murcia, 1937) hace un par de semanas, con un mensaje que dice mucho de este artista empecinado en zarandearnos en los entornos más inesperados, en la cola de una exposición, con una llamada telefónica fortuita o repartiendo octavillas por la calle que simplemente dicen “Tírela cuando acabe de leerla”. Su obra ha transitado por distintos medios: del Mail Art, a la performance, el arte sonoro, acciones y conferencias, todos ellos rodeados siempre de cierta discreción, alejados de toda espectacularidad.

Íntegro como pocos, este Premio Nacional de las Artes Plásticas, en 2007, y Velázquez, en 2015, se ha mantenido independiente del mercado del arte, con la libertad que le ha dado no dedicarse a él en exclusiva, aunque sí ha vendido –subraya–, en un test rápido que le hacemos para averiguar qué hay de real y qué de leyenda en todo lo que rodea a este personaje tan sabio y entrañable. Ha vendido, pero su obra "no es fácil". Y sí, comenzó como pintor en los sesenta pero no destruyó sus cuadros cuando cambió de tercio, "los distribuí entre amigos porque he cambiado mucho de casa y he tenido que elegir entre espacio para mi obra o para mi persona". También ha trabajado con galerías de toda índole pero no se ha casado con ninguna. Y ha hecho exposiciones retrospectivas, de las que renegaba cuando era más joven.

“Estos proyectos de hace más de 30 años siguen de actualidad porque nuestra sociedad no quiere evolucionar”

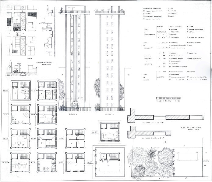
La última, Arquitecturas prematuras, en el MUSAC de León desde el 20 de marzo, y en 2022 en el Azkuna Zentroa Alhóndiga Bilbao, es buena prueba de ello. Está centrada en sus proyectos arquitectónicos, planimetrías con todo lujo de detalles constructivos, que Valcárcel Medina ideó entre 1984 y 1992. Algunas de ellas pudieron verse en la galería Urban de París en 1989, junto a obras de Christo, Kosuth o Stella, nada menos. Tocaba ya entonces temas –la okupación, el chabolismo, los museos, los espacios de trabajo, el aparcamiento en las ciudades, etc.– que siguen hoy en el centro del debate. "Me temo que esto no se debe a que sean más o menos acertados sino a que nuestra sociedad no quiere evolucionar y prefiere reafirmarse en sus verdades".

Pregunta. ¿Cuánto tienen de utópicos y cuánto de realistas todos estos proyectos?

Respuesta. Están planteados para que su construcción sea técnicamente posible pero son muy poco apropiados para la mentalidad reinante. Se habla mucho de la arquitectura utópica pero yo detesto la utopía y prefiero decir que son proyectos prematuros. La Torre para suicidas (1984), por ejemplo, no tiene nada de utópico: sabemos que la gente se suicida cada vez más, aunque no se publiquen los datos, y si es algo que ocurre pongámosles al menos las comodidades necesarias.

'Torre para suicidas', 1984

P. De los 30 proyectos reunidos, hay uno que sí se construyó: la que fue su propia vivienda atravesada por rampas en El Escorial. ¿Cómo se vive en un espacio así?

R. La diseñé a mi gusto, adaptándola a la geografía del lugar. Está en un terreno un poco montañoso marcado por rocas de cuatro metros de altura. Lo sensato hubiera sido eliminar esas rocas y construir sobre un solar limpio pero la casa llega y cae en vertical en medio, como si fuera una más de ellas, una construcción redondeada que no tiene ángulos vivos sino achaflanados. Tiene un gran ventanal de 4 x 3 metros desde el que solo se ve, a medio metro, una de las rocas. Más arriba, en la segunda planta, hay otro ventanal que da a la inmensidad. Este no es el único proyecto que se llevó a cabo, también se construyó, aunque no siga hoy en pie, el de una televisión que gira en torno a una casa, una ironía sobre cómo este aparato irradia todo el lugar habitable.

“Se habla mucho de la arquitectura utópica pero yo detesto la utopía y prefiero decir que son proyectos prematuros”

P. ¿Ha seguido trabajando sobre esta idea inspirado, por ejemplo, por la situación actual?

R. No, tengo la costumbre de abrir y cerrar los proyectos y no volver sobre ellos, no tanto como una imposición sino por explorar otros campos. En los primeros meses de pandemia recorrí mi barrio con sumo detalle sin salir de sus delimitaciones administrativas, contando las calles, haciendo comentarios sobre detalles que no apreciamos cuando el barrio funciona con normalidad, con esa atención que solo te da el no hacer el recorrido habitual. Con todo aquello realicé una grabación y tomé unas fotografías polaroid. La cámara que utilicé es antigua y las imágenes intencionadamente malas. Eso era lo que me interesaba, escogía los días más tristes y nublados porque el panorama de esos meses de marzo, abril y mayo era muy desolador.

Inspiración urbanita

P. Los pintores hablan siempre de una vida de confinamiento, ¿es así también su rutina de trabajo?

R. No, no tengo la rutina de trabajo de un pintor, aunque pueda también empezar a trabajar a las 8 de la mañana. A mí me inspiran las cosas que veo en la calle. Soy muy urbano, saco mucho jugo a la ciudad, por la que voy siempre con la antena levantada, estirada como en un aparato de radio.

Coincide esta exposición con la publicación de El encanto de la crisis (Editorial Pombo, 2021), que reúne varias conferencias de los años 90 que también parece que se han pronunciado ayer. Habla de "crisis de ideas" y de que las crisis "no son imprevistas". "Tengo la sensación –apunta Valcárcel– de que no nos importa ir de crisis en crisis. Mis textos de los años 1993-1994 son transportables a la actualidad y a la anterior crisis como si no hubiéramos progresado. Estamos en las mismas. Ese libro es la transcripción de una exposición, de unos textos largos escritos en la pared que ahora en formato libro pasan a la horizontalidad".

'Museo de la ruina', 1986

P. ¿Producirá esta pandemia algún cambio en las ciudades?

R. Pocos, no veo ningún progreso en el urbanismo, y mira que yo soy un ciudadano, un urbanita. No ha habido cambios apreciables por lo mismo, por el empecinamiento. Se añaden o multiplican los carriles bici pero no por motivos ambientales sino para que entre más gente, hay tal aglomeración… Un ejemplo que cuento siempre es el de los pasos de peatones. Las rayas transversales miran hacia los coches, indican por dónde tenemos que pasar pero sitúan las líneas en nuestra contra. Ya estamos tan hechos a ellos que ni nos damos cuenta, pero si levantamos la antena… Los arquitectos están muy constreñidos a los espacios, a los solares, y a la normativa urbanística. Cualquier cambio –construir 3 plantas en vez de 5, por ejemplo– va en detrimento del beneficio económico.

P. ¿Ni si quiera confía en los estudios de arquitectura más jóvenes?

R. Sí, yo defiendo siempre a los creadores jóvenes, especialmente a los artistas, que buscan otros caminos que huyen de la repetición y de la monotonía. La libertad de un pintor es mucho mayor que la de un arquitecto. El primero trabaja sobre un lienzo o un trozo de pared, mientras que el segundo interviene sobre un terreno de elevado valor económico, algo que bloquea mucho.

Un museo derrumbado

P. Los proyectos del MUSAC encierran varias constantes de su trabajo como la crítica institucional y de la posición del espectador. El Museo de la ruina (1986) está "pensado para que se derrumbe en cualquier momento". ¿Qué es lo que tanto le inquieta de los museos?

R. Hay dos cuestiones que me incomodan. Por un lado, que nos cuenten a los visitantes y, por otro, la cantidad de obras que permanecen en los almacenes que no se muestran. Se podrían aprovechar los pasillos, por ejemplo, como hice en mi exposición en el Reina Sofía con una especie de gabinete abigarrado, una antológica a mi gusto, amontonada, que sólo duraba tres días. No sé qué será lo más acertado pero tiene que haber otra manera más creativa de darle uso a los museos y que no sean tan estáticos y reiterativos. Eso es lo que a mí me interesa, acercarme a ellos de una manera distinta a la habitual, no llevar una obra para exponerla y punto.

“Al espectador se le dan muy pocas opciones: Entre, mire y quédese con la boca abierta. y hay que despertar su pensamiento”

Esa muestra del Museo Reina Sofía que menciona Valcárcel Medina, Otoño de 2009, fue un buen ejemplo de todo lo que promulga el artista. No exhibía obras hechas sino que el quid de la cuestión era lo que allí ocurría. Darle vueltas al edificio del museo el día de la inauguración, entrar por otra puerta, subir por una escalera que no usa nadie… Llegó a colocar un cartelón en el Edificio Nouvel en el que podía leerse: "El autor ruega que disculpen las molestias", dirigido a los vecinos que sufrían en sus viviendas los desagradables reflejos de las chapas metálicas rojas del edificio.

P. ¿Cómo es su relación con el público?

R. Al pobre espectador se le dan muy pocas opciones: Entre, mire y quédese con la boca abierta. Y cuando le dejas indefenso no sabe qué hacer. Hay que colocarle en un territorio expresivo sin que se entere, en una situación poco manida que le obligue a pensar.

P. ¿Qué le parecen las nuevas fórmulas de ver exposiciones a través del ordenador?

R. No he visitado ninguna por ese medio porque no puedo. Tengo un ordenador que manejo muy mal. Me agobia quedarme delante de la pantalla. El otro día estuve contando las teclas que no uso… Cuando escribes en un papel la vista se cansa menos, puedes mirar hacia otro lado. Creo que estos proyectos tendrían que estar pensados específicamente para mostrarse de esta manera. Por ejemplo, ¿cómo se puede pintar online? Hay que generar un lenguaje diferente para ello.

@LuisaEspino4