Zona de el Ensanche, en Santiago.

Zona de el Ensanche, en Santiago.

Santiago

Santiago aprueba las obras del Centro Sociocultural y de Mayores del Ensanche

El Gobierno local ha aprobado la licitación de las obras por 1,6 millones de euros. El centro estará localizado en el número 17 de la calle San Pedro de Mezonzo

Te podría interesar: Herida grave una conductora tras una salida de la vía en A Sionlla, Santiago

Publicada

La concelleira de Dereitos e Servizos Sociais, Promoción Económica e Xuventude de Santiago, María Rozas, ha anunciado que el Gobierno local ha aprobado la licitación de las obras del Centro Sociocultural y de Mayores del Ensanche por 1,6 millones de euros y un plazo de ejecución de 10 meses.

En una rueda de prensa posterior a la celebración de la Xunta de Goberno local, Rozas explicó que este proyecto atenderá a la gente mayor de un barrio "muy envejecido" como es el Ensanche.

Según ha explicado, en este espacio se desarrollarán talleres y actividades intergeneracionales y de envejecimiento activo.

"Tenemos una gran demanda, hay 23.000 personas mayores en Santiago. El objetivo es crear sinergias entre ellas y los usuarios del Centro Sociocultural", ha remarcado.

Rozas ha señalado también que el centro estará localizado en el número 17 de la calle San Pedro de Mezonzo, en el local cedido por la Tesourería Xeral da Seguridade Social por un plazo de 25 años.

Las dependencias tendrán una superficie total de 1.200 metros cuadrados, y el proyecto contempla la demolición del interior y la renovación de las fachadas.

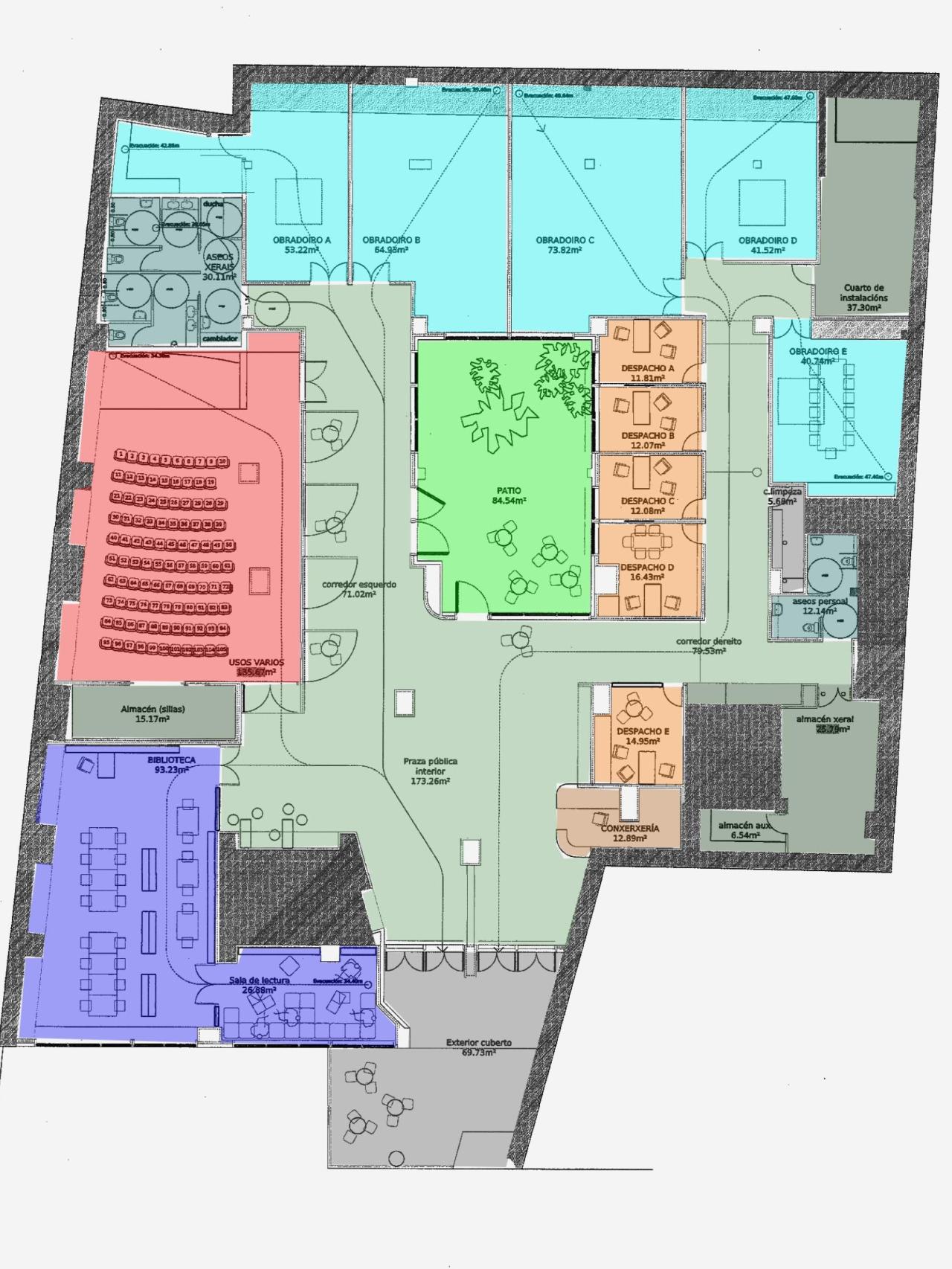
Proyecto del Centro Sociocultural y de Mayores del Ensanche

Proyecto del Centro Sociocultural y de Mayores del Ensanche Concello de Santiago

De esta manera, detalla contará con un patio interior, un salón de actos con capacidad para 180 personas, cinco espacios para acoger los talleres, una zona de despachos y una biblioteca con su correspondiente sala de lectura.

El objetivo es que esté en funcionamiento a principios de 2027. Así, desde que salga publicado en la plataforma de contratación del Sector Público habrá 20 días para presentar las ofertas.