Un edificio postmoderno en la calle Caballeros de A Coruña

Un edificio postmoderno en la calle Caballeros de A Coruña

Ofrecido por:

Conoce Coruña

Un edificio postmoderno en la calle Caballeros de A Coruña

La presencia de la arquitectura postmoderna en A Coruña ha generado diferentes obras, siguiendo diferentes enfoques. En la calle Caballeros el edificio proyectado por Fernández Madrid e Iglesias Pereira muestra una obra equilibrada y atemporal construida en 1985

Publicada

En la década de los setenta, se fundó la revista Oppositions, un proyecto editorial liderado por Kenneth Frampton, Peter Eisenman, Mario Gandelsonas, Anthony Vilder y Colin Rowe. Los artículos de crítica y teoría de esta revista mostraron el relato de cambio de una época. Del estructuralismo al postestrcuturalismo y su transición al postmodernismo, solo un conjunto de nombres para definir la sucesión de estilos en función a la coyuntura sociocultural del momento. El estructuralismo de la década de los setenta circunscrito al ámbito de la semilogía y con un esquema de perpetua crisis, se había abierto a través del pensamiento de Michel Focault, Jean- François Lyotard o Jean Baudrillard. Dicha apertura sentó las bases de un nuevo periodo en el que aparecieron conceptos como el no-equilibrio o el uso de formas libres. Se produjo una renuncia de las pretensiones de décadas anteriores que buscaban la objetividad y la universalidad en favor de un lenguaje propio.

“Walter Benjamin definió la imaginación como la capacidad de interpolar hasta el más mínimo detalle. Sin duda, esta definición logra mucho más que las opiniones actuales que tienden a elevar el concepto a un cielo inmaterial o a condenarlo por razones objetivas. La imaginación en la producción de una obra de arte figurativo no es el placer de la invención libre, de la creación ex nihilo”. Theodor Adorno

Fotografía: Nuria Prieto

Fotografía: Nuria Prieto

El postmodernismo nace desde una concepción no humanista, y en un primer momento es Peter Eisenman el que desarrolla una teoría en torno al funcionalismo retomando ideas de principios del siglo XX, pero concluye en que la tendencia se escora hacia la abstracción, atonalidad y atemporalidad, integrando las teorías filosóficas del momento. Tras la caída de las “tres ficciones”: representación, razón, e historia, Eisenman concluye que no hay modelo alternativo y que solo es posible buscar un discurso propio para la arquitectura: “un espacio eterno en el presente, sin ninguna relación determinada con un futuro ideal o un pasado idealizado. En el presente la arquitectura se considera un proceso de invención de un pasado artificial y un presente sin futuro. Recuerda un futuro que ha dejado de serlo”. Esta teoría es determinante en la compresión de la arquitectura construida durante la década de los ochenta. Muchas obras presentan un discurso propio, ajeno al pasado, con mirada atemporal hacia el futuro, y una voluntad de investigación en el proceso creativo de su momento. La complejidad del nacimiento del postmodernismo se enuncia en el título del libro de Robert Venturi “Complejidad y contradicción en la arquitectura” recogiendo precisamente todas las dificultades conceptuales de este lenguaje.

“El “conocimiento” contemporáneo en arquitectura se caracteriza por la construcción de un proceso cerrado de significado: la separación del significado inmanente (autorreferencial) de uno que trasciende el mundo. Por un lado, tenemos las imágenes de un superhombre positivista y colectivista a punto de ser proyectado hacia una utopía: una utopía con la que la arquitectura llegaría a su fin. Por otro, tenemos visiones desprovistas de promesas y vacías de contenido: poderes a los que debemos someternos como precio de la autorrealización, caracterizados por la invención de fórmulas para la salvación personal y del mundo. Como resultado de este proceso dialéctico, gran parte de la arquitectura actual puede entenderse como una expresión simbólica o una salvación anticipada, en la que el poder de la técnica (ya sea la técnica del engaño o la de la creación) ha reemplazado el poder del cosmos”. Daniel Libeskind en la revista Oppositions.

Fotografía: Nuria Prieto

Fotografía: Nuria Prieto

Postmodernismo

En A Coruña, en la década de los ochenta se proyectan algunas obras que se pueden incluir dentro de este estilo, pero hay muchas formas de utilizar el lenguaje. Hay obras que utilizan el lenguaje postmoderno desde una perspectiva únicamente compositiva con especial acento en la imagen, y otras que aplican sus conceptos genéticos estableciendo una respuesta a su momento. Las primeras parecen ancladas en su tiempo, mientras que las segundas crean una percepción contemporánea de adecuación a su entorno. La arquitectura de la ciudad es diversa y compleja, pero aquellas obras que parecen no tener una edad definida se integran en el tejido de manera equilibrada.

El acceso a la ciudad a través de la avenida Alfonso Molina, es un recorrido por las últimas décadas de desarrollo de la ciudad, hasta penetrar en el tejido histórico consolidado. En la calle caballeros se encuentra un edificio de viviendas que sirve de remate a una de las manzanas que dan hacia la avenida Alfonso Molina. El edificio, obra de los arquitectos Fernández Madrid e Iglesias Pereira, es un volumen residencial construido en 1985 para albergar 63 viviendas dentro de la tipología VPO (vivienda de protección oficial). Este tipo de vivienda de promoción pública, fue impulsada en dicho año por la administración autonómica a través de la Consellería de vivienda de la Xunta de Galicia. En ese momento la vivienda protegida presentaba condiciones similares a las actuales aunque con algunos matices. En la actualidad, además, existen otros modelos más especializados como las VPPB (vivienda con protección pública básica) o VPPL (vivienda de protección pública de precio limitado).

Fotografía: Nuria Prieto

Fotografía: Nuria Prieto

Fotografía: Nuria Prieto

Fotografía: Nuria Prieto

Un edificio equilibrado

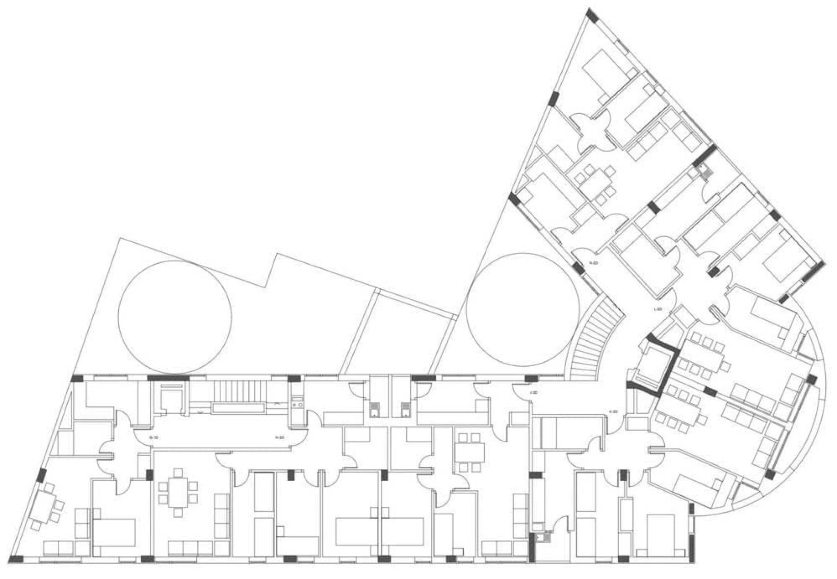
El edificio, de ocho plantas y bajo, alberga seis viviendas por planta que se acomodan a la compleja geometría definida por el solar. Previamente al trazado del área construida, existe un trabajo de regularización geométrica, en el que se toman decisiones en torno a la solución de la arista en esquina y la separación del edificio de sus colindantes para generar un patio dentro de la manzana de tal manera que las viviendas puedan ser ‘pasantes’ es decir iluminar y ventilar a ambas fachadas definiendo una vivienda mucho más saludable e higiénica. El edificio incluye viviendas de uno a cuatro dormitorios, definiendo una distribución sencilla y adecuada para los estándares del momento.

La morfología del edificio es muy interesante ya que volumétricamente niega la arista en esquina, quizás por garantizar un mayor aprovechamiento en planta y por dotar de una imagen más amable del encuentro entre ambos planos. En este sentido, transforma la arista en un gran cilindro vertical del que parten los dos brazos. Esta configuración volumétrica se inscribe en el lenguaje compositivo postmoderno, pero define una estructura atemporal e integrada en el contexto urbano, ya que la negación de la arista y la alineación de las fachadas establece un patrón reconocible en el tiempo. Es una geometría volumétricamente sencilla que se opone al no-equilibrio urbano de manera ordenada pero flexible. El orden se subraya mediante la disposición de los huecos en fachada, siguiendo el mismo módulo que puede duplicarse o incluso ampliarse un poco, pero manteniéndose dentro de una estructura compositiva básica. Así mismo, el material de fachada sigue un patrón de juntas (necesario para evitar la aparición de grietas sobre el proyectado de mortero) que se integra con los huecos generando una lectura fácil de la fachada, lo que va en favor de su ausencia de envejecimiento. Así mismo, los arquitectos eligen el tono rojo para las carpinterías que destacan, de esta forma respecto del plano de fachada, de tal manera que el edificio no se perciba como un volumen masivo excavado, sino como un volumen con vida a través del color. El volumen cilíndrico además incorpora un juego de llenos y vacíos propio del postmodernismo italiano que dota de profundidad a la fachada. En la parte superior se revela que dicho cilindro está superpuesto sobre una fachada cóncava, creando un juego volumétrico interesante, además, la última planta que se retranquea por cuestiones normativa revela la estructura del edificio (calculada por José Andújar). El edificio utiliza el lenguaje propio de su tiempo en una tipología, la vivienda pública, que, en ocasiones, no suele beneficiarse de esta calidad arquitectónica. Así, se convierte en una obra de su tiempo que, además, muestra de manera sencilla y equilibrada rasgos de un lenguaje postmoderno depurado y ordenado.

Fotografía: Nuria Prieto

Fotografía: Nuria Prieto

Fotografía: Nuria Prieto

Fotografía: Nuria Prieto

La práctica reflexiva

El postmodernismo, aunque asociado a una mirada formalista, desarrolló muchas perspectivas diferentes, la mayor parte de ellas, alejadas de métodos formales, y apoyadas en la teoría y la práctica. Colin Rowe basa su explicación en la dualidad de conceptos sustentado en la crítica empirista de Karl Popper, planteando una conciliación de extremos. Aspecto que algunas arquitecturas reflejaron mediante juegos volumétricos, aplicación de color y otras estrategias que son visibles en este edificio. Este tipo de postmodernismo aplica lo que el crítico Kenneth Frampton definió como ‘la práctica reflexiva’.

Fotografía estudio Fernández Madrid e Iglesias Pereira

Fotografía estudio Fernández Madrid e Iglesias Pereira

“Cuando las teorías y las técnicas basadas en la investigación son inaplicables, el profesional no puede alegar legítimamente ser un experto, sino tan sólo estar especialmente bien preparado para reflexionar y entrar en acción” Donald A Schön. The reflective practicioner, 1983

Y es que en esta práctica reflexiva, se muestra el uso inteligente del lenguaje y la presencia de la creatividad como herramienta del arquitecto para la construcción de la ciudad y su futuro, definiendo un modelo de hábitat capaz de adaptase a su tiempo y a las décadas que vendrán.