Presentación de la Casa Delibes en Valladolid

Presentación de la Casa Delibes en Valladolid

Valladolid

Así será la Casa Delibes que abrirá en el 105 aniversario de un mito vallisoletano: "Es historia e intrahistoria"

Desde diciembre del pasado año los depósitos del Palacio del Licenciado Butrón guardan ya el archivo personal de Miguel Delibes.

Más información: La Casa de Miguel Delibes se ubicará en las Brígidas: "Merecía algo más", según Óscar Puente

Publicada

El consejero de Cultura, Turismo y Deporte de la Junta de Castilla y León, Gonzalo Santonja, ha presentado en la mañana de este martes, 25 de marzo, el proyecto de la Casa Delibes y lo ha hecho junto al presidente de la Fundación Miguel Delibes, Germán Delibes.

Una presentación que se ha desarrollado en el Palacio del Licenciado Butrón de Valladolid, en la Plaza Santa Brígida, que es el lugar elegido para albergar el archivo personal del escritor, también las oficinas de la Fundación y una zona visitable que recreará la casa de Miguel Delibes con su escritorio, biblioteca y otros objetos personales y también una exposición permanente. 

“Es un acto entrañable e importante. Las cosas, cuando son importantes, no suelen ser entrañables. Este es importante y muy entrañable”, ha asegurado Gonzalo Santonja que ha añadido que inician “el proyecto de una ambición compartida entre la Junta y la familia Delibes y por todo el mundo que lee al escritor vallisoletano”.

Se trata de un proyecto de un espacio para ensalzar el “legado humano e intelectual” de Miguel Delibes que “va a estar abierto a todas las personas” para “conocer su legado” en un espacio único como es el Palacio del Licenciado Butrón.

“Este centro custodia los documentos más relevantes de la historia reciente. Es el mejor lugar para Delibes que es historia e intrahistoria”, ha añadido el consejero de Cultura, Turismo y Deporte, que ha señalado que desde diciembre del pasado año los depósitos guardan el archivo personal del escritor vallisoletano.

Gonzalo Santonja ha añadido que hoy “damos un paso decisivo en un proyecto encargado por la Junta de Castilla y León para conformar la Casa Delibes. Queremos que abra el 17 de octubre de 2025, cuando se cumplirán 105 años de su nacimiento”, ha anunciado Santonja.

El espacio

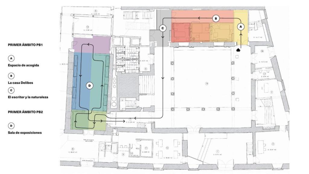
El proyecto encargado por la Consejería de Cultura, Turismo y Deporte, para el diseño y montaje de los espacios expositivos que conforman la futura Casa Delibes se ubica en la planta baja, en torno a su patio central, ocupando dos áreas bien definidas.

Por un lado, a la derecha de la entrada actual, se van a situar los espacios expositivos correspondientes a la zona de acogida o entrada, a la recreación de alguna de las estancias de la casa del escritor y a una zona de tránsito para retornar al patio, dedicada a la relación del escritor con la naturaleza.

Imagen del proyecto de la Casa Delibes

Imagen del proyecto de la Casa Delibes

Santonja ha señalado que, por otro lado, desde el patio el recorrido continúa hacia esta sala de exposiciones o refectorio que, bajo la idea ‘El escritor y sus criaturas’ va a albergar un recorrido por la obra de Delibes y su significado, las adaptaciones al cine y al teatro, la correspondencia con otros autores e intelectuales, o los reconocimientos públicos recibidos.

El recorrido se va a iniciar, en el espacio de acogida, con un texto de bienvenida y una fotografía mural que van a dar paso al espacio privado y doméstico del escritor. Va a ser la verdadera ‘Casa Delibes’.

Allí se recrearán, de la forma más fidedigna los espacios, tres en total, más relevantes de la vivienda. En concreto el salón, su despacho y dormitorio para ofrecer a los visitantes la reproducción de esos espacios vitales con “el mobiliario original y enseres familiares”, ha apuntado Gonzalo Santonja.

En la otra pared del espacio se va a desarrollar la biografía del escritor, una línea del tiempo a través de diversos textos, imágenes y retratos originales que ilustran la vida de Delibes.

Antes de retornar al espacio central, y desde aquí, habrá un espacio tránsito que plantea, bajo la idea ‘El escritor y la naturaleza’, un acercamiento a la relación de Delibes con naturaleza, medio ambiente y campo castellano.

“Su experiencia será recreada en la bicicleta del escritor y la presencia de otros objetos ligaros a su afición por la caza y la pesca. En la pared, libros, cuadros y fotografías realzarán su temática”, ha añadido Santonja.

Imagen del proyecto de la Casa Delibes 2

Imagen del proyecto de la Casa Delibes 2

Sala de Exposiciones

Desde el patio central se va a acceder a la sala de exposiciones en la que la idea ‘El escritor y sus criaturas’ va a permitir profundizar en la obra y el pensamiento de Delibes a través de libros, documentos y premios relacionados con su vida.

Además, destaca la proyección de un audiovisual y la posibilidad de escuchar fragmentos de su obra mediante códigos QR que van a permitir completar una experiencia única para conocer al vallisoletano.

El consejero ha reconocido la “dificultad de abordar, en toda su extensión, una vida tan plena como la vivida por Miguel Delibes” en sus casi 90 años de existencia.

Satisfacción de la familia

“Tras 15 años, finalmente se materializa un proyecto que estuvo entre los objetivos de la Fundación. Quiero mostrar mi gratitud a la Junta y a Gonzalo Santonja en especial por agarrar el toro por los cuernos”, ha señalado Germán Delibes, tercero de los hijos de Miguel y presidente de la Fundación Miguel Delibes.

Ha hecho un repaso por todos los posibles emplazamientos que aparecieron antes del Palacio Licenciado Butrón entre los que destaca Las Catalinas, o la Casona de Montealegre de Campos. Sin embargo, la familia tenía claro que quería que el proyecto se ubicase en Valladolid. 

La Fundación Delibes aún no se ha trasladado hasta el Palacio, aunque “no lo descartan” y Germán Delibes ha valorado positivamente el nuevo logo realizado por la hermana Camino “sencillo” y que dará la bienvenida a todos los que lleguen para conocer el legado de Miguel Delibes.