Digital Castilla

Digital Castilla

Guadalajara NUEVO CAPÍTULO JUDICIAL Y ENFADO EN GUADALAJARA

El Gobierno central recurre la denegación de licencia de obras en la vivienda del Duque del Infantado

Publicada

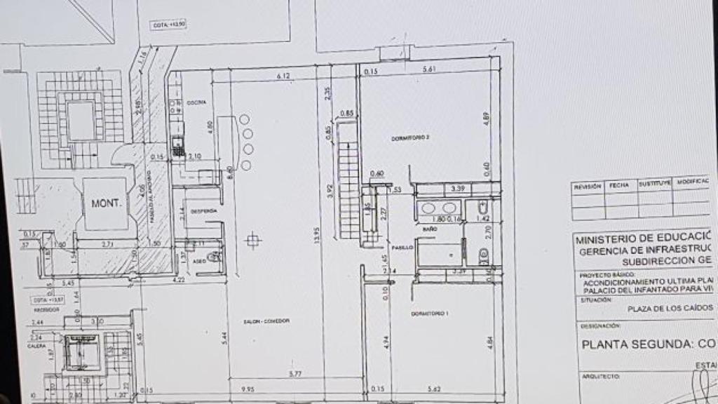
La 'Plataforma Abraza el Infantado' ha denunciado hoy que el Ministerio de Cultura ha presentado un recurso de reposición al Ayuntamiento de Guadalajara contra la denegación de la licencia de obras en la vivienda del Duque del Infantado en el emblemático palacio del mismo nombre.

Según han informado en nota de prensa, precisamente, mañana 9 de enero, se tratará en la Junta Local de Gobierno del Ayuntamiento este recurso de reposición presentado por la Gerencia de Infraestructuras y Equipamientos del Ministerio de Educación, Cultura y Deporte el pasado 28 de diciembre.

A juicio de la 'Plataforma Abraza el Infantado', en base a la normativa urbanística vigente en el municipio de Guadalajara, la existencia de cualquier vivienda privada en todo el suelo en donde se ubica el Palacio del Infantado es "imposible", pero el Ministerio "insiste en recurrir un acto administrativo tan irrefutable".

Sin embargo, la plataforma lamenta que, hace ya casi diez años, no recurriese la sentencia que otorga al duque un supuesto derecho de habitación sobre unas pequeñas estancias del palacio, prebendas que se incluyeron en el acuerdo de cesión firmado en 1960 y que se solían hacer más bien de manera retórica, pues lo que estaban cediendo el Duque del Infantado y el Ayuntamiento no eran más que las ruinas del Palacio, bombardeado durante la Guerra Civil".

Sorpresa

Por este motivo, muestran su "sorpresa" a que ahora el Ministerio recurra esta denegación, "siendo su titular familiar directo del actual duque, circunstancia que fue descubierta desde esta Plataforma mientras se investigaba los antecesores del actual duque y su derecho real sobre el bien inmueble, que nunca se ha justificado de manera procesal, jurídica o registral", recalcan.

Desde la 'Plataforma Abraza el Infantado' recuerdan a toda la ciudadanía que "nunca" será posible que exista una vivienda privada en dicho suelo, tal y como ratificaron los técnicos municipales y los informes técnicos y jurídicos solicitados desde la Plataforma.

Y subrayan que, además, el alcalde garantizó, cuando aceptó reunirse con los representantes de este colectivo, que siempre haría lo que indicaran los técnicos municipales, y que la propuesta de resolución que mañana se tratará va en ese mismo sentido de denegar el recurso presentado por el Ministerio de Cultura.

Por último, la plataforma señala que solicitaron la pasada semana por carta al Duque del Infantado "que muestre un acto de generosidad para con la ciudad y el monumento principal no sólo de nuestra capital sino de la provincia, renunciando al derecho de habitación recogido en la desafortunada y no recurrida sentencia del año 2009".