El cementerio de Torrero de Zaragoza, en una imagen de archivo.

El cementerio de Torrero de Zaragoza, en una imagen de archivo. E. E.

Zaragoza

Del mirador del Ocaso a la sala Caronte para despedidas: así será el renovado cementerio de Zaragoza

El espacio contará también con una nueva sala de despedida, denominada Sala Caronte, de 89 metros cuadrados.

Más información: Zaragoza actualiza los servicios del cementerio de Torrero que ampliará sus instalaciones con una inversión de 7,7 millones

Zaragoza
Publicada

El cementerio de Torrero se ampliará con un nuevo edificio de 1.800 metros cuadrados. En él, tal y como se recoge en los nuevos pliegos, se dispondrán cuatro nuevos hornos crematorios con mayor capacidad y mejores sistemas de filtración, que sustituirán a los actuales (instalados en 2011).

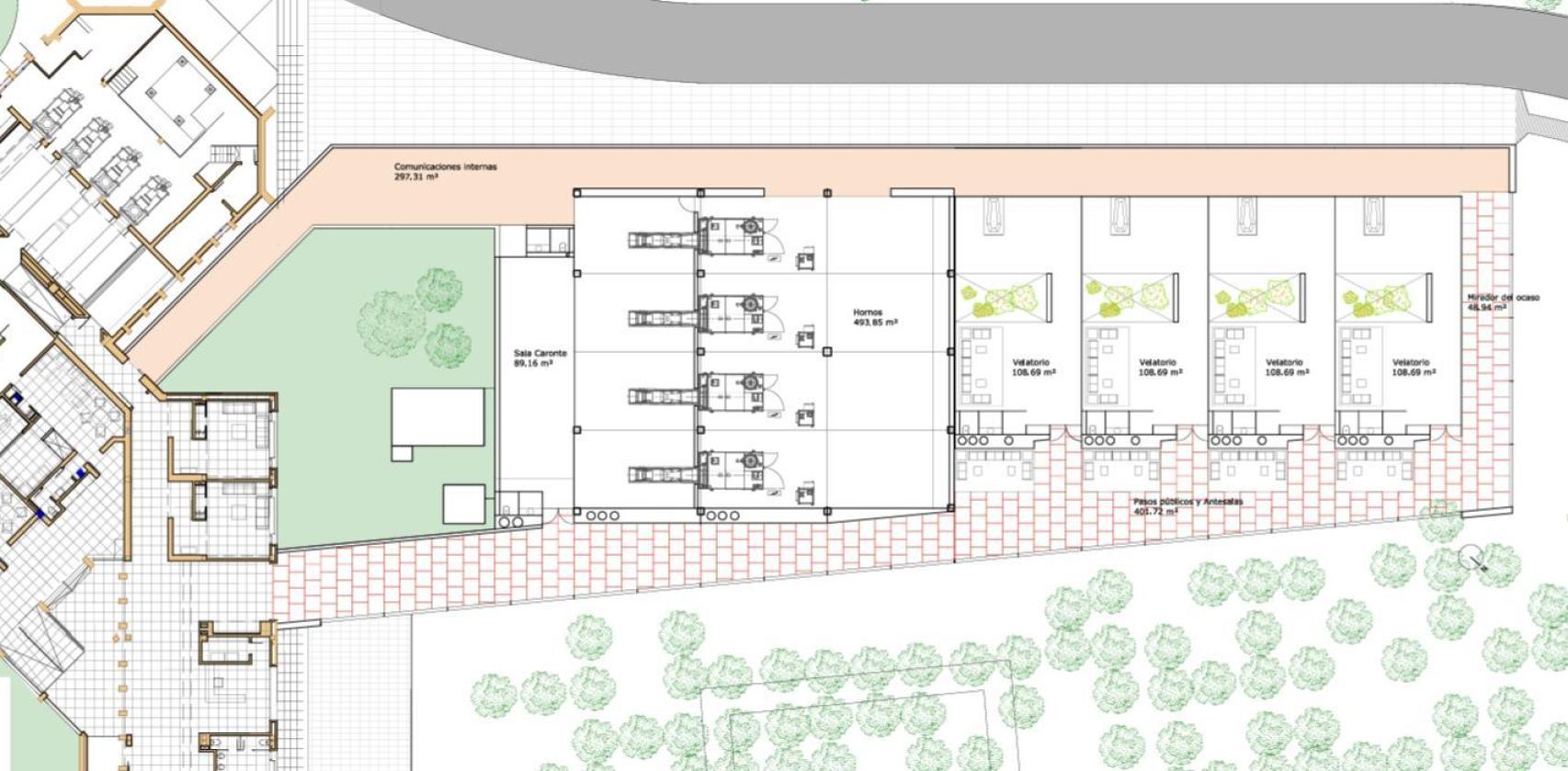
El corazón del nuevo edificio será precisamente la sala de hornos crematorios, que ocupará cerca de 500 metros cuadrados. Junto a ella, el espacio acogerá cuatro velatorios de 108 metros cuadrados cada uno, pensados para el acompañamiento familiar en un entorno íntimo y cómodo.

Zona de despedida

Habrá también una nueva zona de despedida, denominada Sala Caronte, de 89 metros cuadrados. Un nombre que hace referencia a una figura central en la mitología griega: el barquero que transportaba las almas de los muertos a través del río Aqueronte hacia el Hades.

A todo esto se le sumará el mirador del Ocaso, de 49 metros cuadrados y anexo a los velatorios, desde el que se podrá contemplar el pinar colindante.

Plano del nuevo edificio del cementerio.

Plano del nuevo edificio del cementerio. Ayuntamiento de Zaragoza Zaragoza

El nuevo edificio se organizará en dos áreas diferenciadas: una zona privada destinada al personal del complejo y una pública para los usuarios. Ambas estarán conectadas mediante circulaciones independientes. Desde la zona de admisión se accederá a través de un recorrido abierto entre árboles que conducirá a las antesalas de los velatorios y a la Sala Caronte, pensada para las despedidas previas a la incineración.

Ubicación y nuevo acceso

El nuevo edificio se levantará junto a las actuales instalaciones. Concretamente estará ubicado al lado del Tanatorio B, las capillas 1 y 2, y la zona donde ya se ubican los hornos crematorios. Para ello, el proyecto incluye la reconfiguración del vial rodado que bordea el complejo.

El nuevo acceso al aparcamiento discurrirá a través del pinar, en un recorrido más amable, sin afectar a los cerca de 75 enterramientos de cenizas ubicados en esa zona, que serán respetados y protegidos durante las obras.

El servicio deberá estar disponible de forma permanente, las 24 horas del día y los 365 días del año. En el caso concreto del velatorio, las familias podrán usar estos espacios durante el horario permitido por la normativa municipal, aunque estará cerrado al público entre las 10 de la noche y las 8 de la mañana.

Coste aproximado

En cuanto al coste, según se señala en el anexo, se estima que la nueva edificación oscilará entre los 3,25 y los 3,97 millones de euros, dependiendo de los acabados. Sumando la nueva carretera, el camino peatonal y la instalación de hornos y sistemas de filtrado, la inversión total rondará los 5,7 a 6,4 millones de euros.

No obstante, el contrato exigirá a la empresa adjudicataria una inversión de 7,7 millones de euros, así como un canon anticipado de 3 millones de euros y un pago anual correspondiente al 2% del importe neto de las actividades desempeñadas.

La actuación responde a la necesidad de modernizar los servicios, atender la creciente demanda y adaptarse a las exigencias técnicas actuales. Las obras deberán finalizar en un periodo de hasta cuatro años desde el momento en el que se haga la concesión del camposanto.

Durante los 30 años que dure el contrato, la empresa estará obligada a mantener en buen estado las instalaciones, renovarlas o sustituirlas si fuera necesario. Por ejemplo, hasta que finalice la nueva obra, la empresa deberá afrontar una actualización urgente del sistema de filtrado de los equipos.

Según consta en el informe, la empresa que instaló los anteriores hornos en 2011 (Kalfrisa) señalaba que estas instalaciones solo cuentan con entre seis y ocho años más de vida útil. Para alargar su funcionamiento y cumplir con la normativa vigente, será necesario instalar un sistema de medición y control de oxígeno en su interior. Esta intervención, que se considera prioritaria, tendrá un coste estimado de unos 48.000 euros.