La torre norte del Palacio del Infantado, huella del gótico flamígero, se convertirá en un dúplex de lujo, que el Gobierno va a regalar a los herederos del duque del Infantado, con cargo al erario público por valor de medio millón de euros. El acuerdo de cesión gratuita del palacio, firmado en 1960, comprometió al duque a entregar a los españoles el edificio en ruinas -tras el bombardeo de la Legión Cóndor, en 1936. A cambio, el Estado se hizo cargo de la restauración, que el duque no asumió, y lo transformó en un espacio cultural que ha llegado a albergar museo, archivo y biblioteca provincial. Además, debía reservarse un espacio para sus herederos.
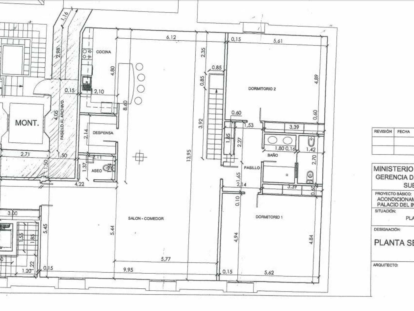
En 2009, una sentencia judicial vino a aclarar -o a enturbiar-, que debería reservarse espacios a fin de que “el duque del infantado pueda habitar personalmente en ellas de manera ocasional y utilizarlas como museo o archivo familiar”. Confirmaba lo señalado durante la dictadura a favor de la familia del duque. Para el grupo socialista una vivienda de 400 metros cuadrados, con “espacios que deberán ser amplios”, escaleras de madera maciza, dos dormitorios de casi 30 metros cuadrados cada uno, un baño y un aseo, un recibidor, entreplanta, una cocina de diez metros, un espacio diáfano de 80 metros cuadrados y, lo más llamativo, un salón comedor de casi 110 metros cuadrados, no es una “vivienda ocasional”. De hecho, la han calificado de “palacete” o “casoplón”. “El Gobierno le está construyendo una vivienda de lujo a los familiares del duque del infantado”.
Fachada del Palacio del Infantado, en Guadalajara.
Para Íñigo Méndez de Vigo, ministro de Educación, Cultura y Deporte y barón de Claret, el proyecto cumple con la sentencia y con la condición de los antiguos dueños. Es una vivienda ocasional, en el edificio público y centro neurálgico de la ciudad de Guadalajara. “El ministerio ha hecho lo que tenía que hacer, que era cumplir con su deber, cumplir con una obligación derivada de un acto de cesión con el anterior titular y resolver una situación que venía ya empantanada desde hace sesenta años y que ustedes no han resuelto”, respondía el ministro a la senadora Riansares Serrano.
Fiestas privadas en edificios públicos
“Y eso que usted llama el dúplex es la parte de arriba, que según han estimado los técnicos es la mejor solución para posibilitar otros accesos al palacio, donde está el archivo y el museo provincial”. Sin embargo, ni el archivo ni el museo están desde hace años en el edificio a nombre del Ministerio de Educación, Cultura y Deporte. “El Palacio de los Duques del Infantado seguirá siendo lo que es, seguirá siendo uno de los más bellos ejemplos del gótico isabelino, donde Felipe II se casó con Isabel de Valois, donde vivió Mariana de Austria”, añadió el ministro, que prefiere usar la terminología artística de los tiempos de los reyes Católicos para referirse al gótico plateresco.
El dúplex es la parte de arriba, que según han estimado los técnicos es la mejor solución para posibilitar otros accesos al palacio, donde está el archivo y el museo provincial
El PSOE le pide al Gobierno que reconsidere el proyecto de básico y que, antes de llegar al proyecto de ejecución tras el permiso de obras del Ayuntamiento, negocie el cumplimiento adecuado de la sentencia “para priorizar el uso público de un edificio que es de todos frente a los intereses particulares de uno solo”.
Reclama, también, que el Ministerio de Cultura invierta en la rehabilitación del palacio y del museo provincial, “abandonado por su ministerio”. “En Guadalajara queremos que el Palacio del Infantado siga siendo un espacio de arte, de cultura, de encuentro de la sociedad”, añadió. Y todavía queda por resolver el acceso a la vivienda privada. María Dolores de Cospedal, en 2013, cerró el palacio a los ciudadanos para celebrar una fiesta privada del PP.
